Ein Haus, das den Spagat zwischen Alltagstauglichkeit und Individualität meistert – so sah der Traum eines jungen Paars aus. Heute präsentiert sich das neue Zuhause durchdacht, funktional und mit viel Gespür für Details. Hersteller: freshhaus



Schon in jungen Jahren hegten die Bauherren den Wunsch nach einem eigenen Haus. Heute leben sie diesen Traum – auch dank eines vorhandenen Grundstücks. Ihr neues Zuhause ist das Ergebnis persönlicher Vorstellungen und durchdachter Planung, die zu einem stimmigen Gesamtbild vereint wurden. Von Beginn an stand die Frage im Zentrum, wie sich ein Eigenheim gestalten lässt, das dem Familienalltag ebenso gerecht wird wie den individuellen Bedürfnissen der Bewohner. Die Wahl fiel auf ein Satteldachhaus, das sich harmonisch in die Umgebung einfügt und zugleich eigene Akzente setzt. Eine versetzte und farblich kontrastierende Fassade unterhalb des Giebeldachs verleiht dem Gebäude eine moderne Anmutung.
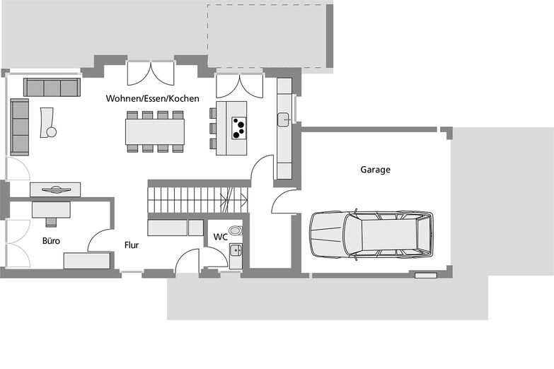
Auch funktional zeigt sich das Architekturkonzept gut durchdacht: Der direkte Zugang von der Doppelgarage führt in einen kleinen Vorraum, der als Windfang dient. Der eigentliche Eingang mit Garderobe schafft ebenfalls einen Puffer zwischen aussen und innen. Von hier aus öffnet sich ein grosszügiger Raum zum Wohnen, Essen und Kochen, der sich über die gesamte Breite des Hauses erstreckt. Helle Keramikböden, grosse Fensterflächen und eine zurückhaltende Farbgestaltung sorgen für ein angenehmes Raumgefühl. Die anthrazitfarbene Küche mit Kochinsel und Holztresen bildet dabei einen gelungenen Kontrast zur hellen Atmosphäre. Der überdachte Sitzplatz im Freien erweitert den Wohnraum und bietet mit einer Wand an der Seite die nötige Privatsphäre. Ein separates Büro sowie ein Gäste-WC vervollständigen das Erdgeschoss. In der oberen Etage setzt sich das durchdachte Raumkonzept fort: Das Schlafzimmer verfügt über einen begehbaren Kleiderschrank und ein direkt angeschlossenes Badezimmer – so lassen sich unterschiedliche Tagesabläufe ohne Störungen umsetzen. Zwei Kinderzimmer teilen sich ein weiteres geräumiges Bad, was die Abläufe im Alltag zusätzlich erleichtert. Der Giebel ist offen bis unter das Dach und mit weiss lackiertem Holz verkleidet, was den Räumen im Obergeschoss ein besonderes Flair verleiht.
Ein Fixpreis, transparente Prozesse und flexible Gestaltungsmöglichkeiten überzeugten das Paar, als es sich für das Generalunternehmen «freshhaus» entschied. Zwar diente ein bestehendes Konzeptmodell als Ausgangspunkt, doch viele Elemente wurden während der Planung individuell an die Wünsche der Bauherren angepasst. Besonders die Bemusterung empfanden sie als intensiv und hilfreich: Innerhalb weniger Tage wurden Materialien, Farben und Ausstattung festgelegt. Auch während der Bauphase war der Ablauf strukturiert – Abstimmungen verliefen effizient, der Zeitplan wurde eingehalten, und auf Wunsch der Bauherren kamen lokale Handwerksbetriebe zum Einsatz. Heute spiegelt das Gebäude die Vorstellungen seiner Bewohner wider, auch in technischer Hinsicht – eine Photovoltaikanlage sowie eine Wärmepumpe sind Investitionen für die Zukunft. Es ist ein Ort, der sowohl Raum für Rückzug als auch für gemeinsames Familienleben bietet und der bei Besuchern den Eindruck hinterlässt, dass hier mit Weitblick und Herz gebaut wurde. (el)


Technische Angaben (Pläne: Obergeschoss, Erdgeschoss)
Kategorie Konzepthaus, Systemhaus, Planhaus, Fertighaus, Typenhaus
Konstruktion Massivbau, Backstein und teilweise Beton oder Kalksandstein
Dach Satteldach mit Ziegeleindeckung
Haustechnik Luft-Wasser-Wärmepumpe, Photovoltaikanlage
Raumangebot 5½ Zimmer, 204 m² Nettogeschossfläche
Liefergebiet Schweiz
Preis auf Anfrage


Hersteller:
freshhaus
9501 Wil
Tel. 071 913 46 46
aus: Das Einfamilienhaus, Heft Nr. 5/2025