Abgesetzte Kuben fügen sich zu einem grossen Ganzen zusammen. Das Haus überzeugt mit höchstem Wohnkomfort. Hersteller: freshhaus



Ein Zuhause, das keine Wünsche offenlässt – so könnte man dieses Haus beschreiben, das nicht nur mit seiner Architektur, sondern auch mit vielseitiger Funktionalität beeindruckt. Das Einfamilienhaus von freshhaus ist eine gelungene Symbiose aus Wohnkomfort und Arbeitsmöglichkeiten. Aus kubischen Formen fügen sich zwei Vollgeschosse, das Attika sowie das Kellergeschoss zusammen. Grosse Fensterflächen und moderne Stützen lockern das Gebäude auf. Schon beim Betreten des Hauses wird klar: Hier trifft Eleganz auf Innovation. Das Entrée empfängt Bewohner und Gäste mit Weite und Licht. Die eingebaute Garderobe verbirgt sich diskret hinter einer Schiebetür. Der helle Steinboden unterstreicht das edle Ambiente.
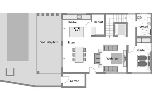
Die Wohnräume sind hell und grosszügig gestaltet. Eine Galerie im Obergeschoss verbindet die Etagen auf elegante Weise und bietet gleichzeitig einen luftigen Blick in die Wohnetage. Hier ist ein besonderes Highlight inszeniert: Ein eingelassener Glasboden gibt den Blick auf den darunterliegenden Eingangsbereich frei und verleiht dem Erdgeschoss eine faszinierende Tiefe. Eine stilvolle Lounge fasst diese architektonische Raffinesse auf zwei Seiten ein. Essplatz und Küche sind so angeordnet, dass die Terrasse direkt zugänglich ist. Grosse Fenster lassen innen und aussen verschmelzen und die Bewohner können den Komfort des Hauses auch unter freiem Himmel geniessen. Ein attraktiver Ort für Sommertage und sportliche Aktivitäten ist der Pool mit Aussendusche. Ein separates Gästezimmer mit angrenzendem Duschbad komplettiert die Etage. Im Obergeschoss befindet sich die luxuriöse Mastersuite mit eigenem Bad, einer Ankleide und privater Lounge – ein Rückzugsort, der Ruhe und Exklusivität vereint. Den Bewohnern steht zudem ein weiteres Schlafzimmer zur Verfügung. Neben dem Wohnkomfort überzeugt das Haus zudem mit einer Vielzahl praktischer Elemente: Ein verstecktes Reduit neben der Küche bietet Stauraum, und der Geräte- und Veloraum schafft Platz für das Sportequipment. Die Garage mit vier Stellplätzen fügt sich nahtlos in die Gesamtgestaltung ein. Ein weiteres Highlight ist der separate Homeoffice-Bereich mit Raum für mehrere Arbeitsplätze. Ein grosszügiger Balkon lädt zu Arbeitspausen im Freien. Diese clevere Lösung im Attika macht das Haus zum idealen Ort, um Beruf und Privatleben unter einem Dach zu vereinen – ohne dass eines davon zu kurz kommt. Das gesamte Gebäude ist mit modernster Smart-Home-Technologie ausgestattet, mit der sich Licht, Temperatur und Sicherheitssysteme bequem per App steuern lassen. Ein Lift sorgt zudem für einen barrierefreien Zugang zu allen Etagen. (el)


Technische Angaben (Pläne: Obergeschoss, Erdgeschoss)
Kategorie Konzepthaus, Systemhaus, Planhaus, Fertighaus, Typenhaus
Konstruktion Massivbau, individuelles Einfamilienhaus
Dach Flachdach mit extensiver Begrünung
Haustechnik Luft-Wasser-Wärmepumpe, Photovoltaikanlage, Aufzug, KNX-Hausautomation
Raumangebot 5½ Zimmer, Büro, 356 m² Bruttogeschossfläche
Liefergebiet Schweiz
Preis auf Anfrage



Hersteller:
freshhaus
9501 Wil
Tel. 071 913 46 46
aus: Das Einfamilienhaus, Heft Nr. 3/2025