Das freut die ganze Familie

Ein Zuhause ist nicht nur ein Ort zum Wohnen, sondern auch ein Ort der Geborgenheit, wo das gemeinsame Leben zu gemeinsamen Erinnerungen wird. Um sich diesen Lebenstraum zu erfüllen, wählte die junge Familie ein schönes Grundstück im Kanton St. Gallen. Hersteller: Kobelthaus, Kobelt AG

Kobelthaus «Jadra» präsentiert sich zeitlos und elegant.
Kobelthaus «Jadra» präsentiert sich zeitlos und elegant.
Im Wohnraum ist Platz für gemeinsame Stunden.
Im Wohnraum ist Platz für gemeinsame Stunden.
Helles Holz sorgt unter dem Dach für ein schönes Ambiente.
Helles Holz sorgt unter dem Dach für ein schönes Ambiente.

Das Hauskonzept «Jadra» von Kobelthaus gefiel der Familie wegen seines zeitlosen, klaren Erscheinungsbildes. Die Raumaufteilung lässt viele Möglichkeiten offen, sie kann jeweils optimal auf die Wünsche der Bauherrschaft, die Besonderheiten des Bauplatzes und die Bauvorschriften abgestimmt werden. Der Architekt der Kobelt AG passte den Grundriss, die Fassade und die Form ohne Planungsmehrkosten an die Gegebenheiten an. Mit seinem Walmdach fügt sich das Haus gut in die ländliche Umgebung ein. Die Fassade erstrahlt in frischem Weiss, umgeben von viel Grün und den nahen Bergen.

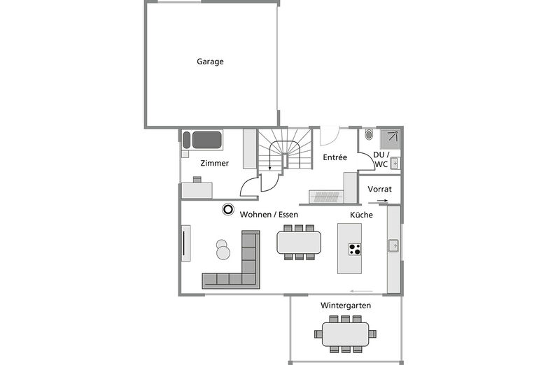
Bei der Planung des Hauses stand die Funktionalität im Vordergrund. Der Dachüberstand der angebauten Doppelgarage schützt den kurzen Weg bis zur Haustür. Die Balance zwischen Funktionalität und Schönheit und die schlichte Eleganz der Innenarchitektur sorgen für eine ruhige und entspannte Atmosphäre im Haus. Das grosszügig bemessene Entrée bietet viel Stauraum für die Garderobe. Zusammen mit den Treppen, die ins Obergeschoss und in den Keller führen, ergibt sich ein Durchgang zum angrenzenden Gästezimmer und zum Gäste-WC. Der offene, einladende Wohnbereich orientiert sich zum Garten. Eine Sitzlandschaft lädt zum Verweilen ein und ein Specksteinofen sorgt bei Bedarf für Wärme im Raum. Wer in der Küche tätig ist, bleibt dank der Kochinsel in kommunikativem Kontakt zu den anderen im Wohnraum. Praktisch ist der Vorratsraum direkt neben der Küche, der zusätzlichen Stauraum schafft und für Ordnung sorgt. Bodentiefe Fenster bringen viel Licht in das Erdgeschoss. Um der Natur noch näher zu sein, nutzt die Familie gerne den Wintergarten. Die Fenster lassen sich grosszügig öffnen, so dass der Anbau das Gefühl vermittelt, auf einer überdachten Terrasse zu sitzen. Grosse, helle Keramikfliesen bilden mit dem angrenzenden Freisitz eine harmonische Einheit.

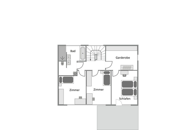
Privatsphäre und Rückzugsmöglichkeiten finden sich im Obergeschoss. Die Räume sind bis zur Dachschräge offen gestaltet. Die helle Holzverkleidung verleiht den Räumen ein behagliches Wohngefühl. Wie im Erdgeschoss ist der Boden mit Parkett ausgelegt, was den hochwertigen Ausbau mit unterhaltsarmen und natürlichen Baumaterialien fortsetzt. Über eine geräumige Ankleide führt der Weg vom Gang ins Elternschlafzimmer mit seinem grossen Balkon. Auch die beiden anderen Zimmer orientieren sich zum Garten. Das Familienbad ist geschickt zoniert und mit einer bodengleichen Dusche und einer Wanne ausgestattet. Hier kommt sich niemand in die Quere, auch wenn es im Familienalltag mal turbulent zugeht. Die Bewohner freuen sich über das familienfreundliche Gesamtkonzept, in dem sie sich entfalten und gemeinsam das Leben geniessen können. (el)

Neben der modernen Küche erweitert der Wintergarten den Lebensraum.
Neben der modernen Küche erweitert der Wintergarten den Lebensraum.
Der Wintergarten schafft Nähe zum Umschwung.
Der Wintergarten schafft Nähe zum Umschwung.

Technische Angaben (Pläne: Obergeschoss, Erdgeschoss)

Kategorie Systemhaus, Planhaus, Fertighaus, Typenhaus
Konstruktion Massivbau, Hausidee «Jadra» angepasst, massive Baukonstruktion in Beton und Backstein
Dach Walmdach, auch als Sattel-, Flach oder Pultdach möglich, Ziegeleindeckung, Dachräume bis in Dachschräge offen
Haustechnik Luft-Wasser-Wärmepumpe, Photovoltaikanlage, Cheminée, Mingeriestandard möglich
Raumangebot 5½ Zimmer, Nettogeschossfläche 165 m²
Liefergebiet Nord- und Ostschweiz grosse Teile der Zentral- und Westschweiz sowie Liechtenstein
Preis Festpreis schlüsselfertig auf Anfrage

Pläne
Pläne
Logo Kobelthaus, Kobelt AG

Hersteller:
Kobelthaus, Kobelt AG
9437 Marbach, 5403 Baden-Dättwil, 3421 Lyssach
Tel. 071 775 85 85

aus: Das Einfamilienhaus, Heft Nr. 4/2023

Artikel teilen

Datenschutzhinweis

Diese Webseite nutzt externe Komponenten, welche dazu genutzt werden können, Daten über Ihr Verhalten zu sammeln.

Notwendige Cookies werden immer geladen